CAD看图软件移动端。在手机上查看CAD图纸,随时随地共享您的设计创意,浏览、下载、分享您的所有CAD图纸,多设备同步;
一键下载和分享图纸,轻松和团队成员一起共享图纸。只需一个账号,即可随时随地实现手机和电脑同步看图。既便捷又安全,让工作更加自由方便。可以脱离AutoCAD快速浏览DWG、DXF图纸文件,避免了打开庞大的CAD软件来看图的麻烦,提高了工作效率。
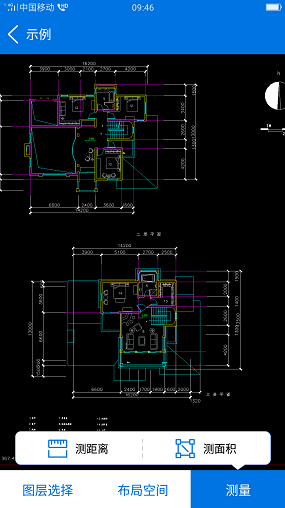
通过wifi传输上传图纸到手机,点击CAD图纸即可打开。支持浏览大容量的CAD图纸,打开和浏览大容量CAD图纸毫无压力。CAD看图APP采用了专业的图形引擎,可完整显示图纸布局,详细识别每个图块。提供了平移、缩放、测量等功能。
扩展资料:
手机上看电子版图纸还需要下载:PDF阅读器。
现在电子版图纸绝大部分为PDF文件,可以防止他人将图纸进行更改,保证数据的准确安全。
CAD快速看图是由广联达软件股份有限公司自主研发的快速查看CAD图纸的工具,有Android版、iOS版和PC版。
软件可以对CAD图纸进行查看、标记、测距、照相和录音等功能。通过拷贝、邮件发送等传输方式将图纸发送到设备,即可在工地现场离线使用。
现在电子设计主流的软件是哪些?目前各种电子设计软件主流的版本?
PCB Layout 软件
1.Protel,现在推Altium Designer。国内低端设计的主流,国外基本没人用。简单易学,适合初学者,容易上手;占用系统资源较多,对电脑配置要求较高。在国内使用protel的人还是有相当的市场的,毕竟中小公司硬件电路设计还是低端的居多,不过建议各位尽早接触学习别的功能更优秀的软件,不要总在低层次徘徊,对薪水不是很友好啊,呵呵。
2、pads
PADS软件用的人也是相当的多,好用,易上手,个人感觉比Protel好不知多少倍。适合于中低端设计,堪称低端中的无冕之王。现在市场上使用范围最广的一款eda软件,适合大多数中小型企业的需求。其本身没有仿真,做高速板时,要结合其他专用仿真工具,如hyperlynx。
3、Cadence allegro
高速板设计中实际上的工业标准。无论哪一方面都超牛。
PCB Layout工具绝对一流,稍微熟悉一点后就不再想用其他工具了,布线超爽。仿真方面也是非常的牛,有自己的仿真工具,信号完整性仿真,电源完整性仿真都能做。在做pcb高速板方面牢牢占据着霸主地位。要知道这个世界上60%的电脑主板40%的手机主板可都是拿Allegro画的啊!现在我做板子,不论简单的还是复杂的,都用这个,小板儿一天搞定。用熟了,那是相当的爽。
4 Mentor WG
稍逊于CADENCE,但同样是顶级工具,针对的是高端电路设计,同样有自己的仿真工具。只不过在国内其支持商还相对少点,不如Cadence用的多
手机电子相册app哪个好 免费的电子相册制作软件有哪些
手机性能和操作性相对电脑都要弱,如果想要做的电子相册足够好看,还是建议在电脑上用 数码大师 做
1、导入你的照片,可以直接生成电子相册
2、在背景音乐面板,给电子相册配上背景音乐,还能搜索下载LRC歌词文件,为电子相册配上MTV歌词字幕
3、文字特效、镜头缩放效果、转场特效、动感场景都能,很多能自动应用,也可以自己自定义。特效和素材基本都是自带的,非常方便
4、生成视频相册,直接上传就行
电子电路设计软件中文
这些软件都可以在网上下载,但一般是英文,也有汉化版,我建议你用英文如果你要从事这个行业的话,因为有很多器件是没有中文资料的
怎样下载手机平面图设计软件
苹果直接在appStore或者在iTunes上面下载,安卓直接在百度或者在应用商店(应用宝,各种手机助手)搜索名字就可以下载了,苹果的appStore搜不出就直接去百度搜,然后下载
设计手机软件
学学JAVA基础吧……然后学J2ME
顺便接触一下LINUX,现在尤其是手机开发大部分不是在Windows环境……要开发手机……电子通信知识总要有一点吧……
用什么软件设计电子电路
电子电路的设计软件很多。
如果你是初学者,建议从protel学起,这个软件容易搞,现在还在用。
版本的话,可以考虑protel 99se 或者 protel 2004dxp 都不错。
而且熟练的话,以后可以用protel的更高级版本Altium Designer 6.x。
这是学校的主流,工作的话,会因公司要求不同而不同,但是基本原理一致。
电子电路的仿真软件也有一些。
NI公司的NIMultisim 11电路仿真设计能力比较强,而且,也可以在配套软件中设计PCB,原理图等等。
Proteus 7 Professional 也可以考虑,但是这个主要是用来仿真单片机的。对于模拟电路和非编程逻辑电路的仿真能力一般。
参考资料:从业经验,个人总结
转载请注明出处51数据库 » 电子设计软件手机版下载 在手机上看电子版图纸下载什么软件
屌人9527


