1、打开文档(这里以在office2013新建一个文档为例子讲解,其他版本的office完全可以参照这个方法)
2、点击“插入”,进入插入的相关选项界面
3、点击该快捷菜单栏右上边的“对象”
4、在出来的选项中点击“选项(J)”
5、选择"AutoCAD",点击“确定”
6、这时候正在启动CAD程序,需要一定的时间,启动后自动进入CAD绘图程序,绘制你想要的图,或者将别的CAD中的图复制粘贴在里面。
7、利用快捷键:“Ctr+s”,关掉CAD窗口。这时候你回到word界面,你会发现,图十分清晰
扩展资料:
把cad图形导入excel图表的方法
1、打开CAD这款软件,进入CAD的操作界面如图所示:
2、在该界面内找到绘图菜单,如图所示;
3、点击绘图菜单,在其子级菜单里找到表格选项,如图所示:
4、点击表格选项,在弹出的对话框内设置表格的行数和列数,并设置行高和列宽,如图所示:
5、设置好以后点击确定,提示我们指定插入点,如图所示:
6、指定插入点以后,在绘图区里就出现了表格,选择该表格单击鼠标右键,在弹出的右键菜单里找到输出选项,如图所示:
7、点击输出选项在弹出的对话框内给文件命个名字,然后设置格式为逗号分隔(*scv),
8、然后打开excel这款软件,在该界面内找到文件菜单里的打开选项,如图所示:
9、点击打开选项在弹出的对话框内找到我们刚刚输出的图形文件,点击打开我们就将CAD图形导入到excel中了,如图所示:
如何把WORD里的文字导入CAD图中
不知道你是怎么操作的,但在我这可以放进去,说说我的操作方法。
1.选定一段word文字后,Ctrl+C复制选定文字,
2.进入CAD,打开需要输入文字的图纸,
3.选择菜单栏【绘图】----【文字A】(可选多行或单行),然后CAD控标点击两点画出一个任意长方形,
4.在画出的长方形框中,出现输入光标,Ctrl+V或者右击复制,即可粘贴你所选定的word文段。
这是我的操作方法,
cad图怎么导入word
CAD转到word的几种方法:
1,直接在word中进行 菜单:插入-对象,“对象”对话框,选择“由文件创建”在选择你要插入的CAD文件图形,再确定就自动打开你的那个CAD文件,此时你需要做的是调整CAD运行窗口的大小到适合大小,一般占1/4屏幕较好,再保存CAD就插入完成。
2.使用CAD的的输出功能来进行:
在CAD中的输出中,对word 可以用的有*.BMP画图板格式和*.wmf图元文件格式,使用该两种输出文件时,应该是先调整CAD运行窗口的大小到适合大小,再菜单输出,此时需要选择输出图形的范围,跟打印选框类似,再确定保存就是,你所选框范围内的东西就截取呈输出格式的文件,
最后使用word的插入-对象选择你输出的图片即可!
比较:第一种方案使用的打印效果较好,便于使用,但不能显示线宽,你所设置的线宽大于0.3的均为统一粗线,小于0.3的线宽均属于细线,不够好看没区别,但简单图形用细线打印出来比较好看些!而且这种方法的图形是可以改动的,还可以用CAD编辑。
第二种方法是,可以显示线宽,但最大缺点是不能再修改,同时它在调整CAD运行窗口的时候,须将图形调整到可以分辨清楚的大小,不然它的输出仅仅类似“考屏”,图形放大时会出现断续状的位图。使用这种方法需耐心调整CAD运行窗口。
解决第二种方法的办法有一个软件,它可以有效处理上述问题,但就是它也不能像第一种方法一样可以再修改。软件名称:BetterWMF 4.01,再百度中搜一下可以找到!
如何将cad图导入word
1、命令输入jpgout,选择保存文件路径,选择对象,即可,此jpg格式文件背景与cad背景相同。
2、选择输出--其它格式文件,文件类型选择图元文件vmf,确定,选择对象即可,此格式文件,为白色背景,可插入到office
3、可选择虚拟打印机,打倒不同格式的文件。
4、可以由选择输出-其它格式--文件类型中选择需要的格式。
5、打开word,选择插入-图片-所需要的格式图片 ,再剪切,缩放等编辑操作。
6、也可在cad中直接发复制,到word中复制。
word文件导入到cad中怎么修改
导入方式有几种:
1是CAD的OLE对象导入(“选择性粘贴-〉Microsoft Word 97-2003 文档”),双击对象即可打开一个word软件,可在其中编辑。这种方法可以完美保持word文件中的格式、表格和图像等信息,但有时会出现只显示首页内容的问题。
2是采用“选择性粘贴-〉Autocad图元”导入,此时导入为单行文字,可按照单行文字进行编辑啊。这种方法在导入时,原文件中的表格转化为线段和文字,原文件中的位图文件等插入对象无法导入。
3是采用打开多行文字(Mtext),然后再粘贴的方式导入。此时导入为多行文字,可按照多行文字进行编辑。这种方法在导入时,原文件中的除文字之外的表格、位图文件等无法导入。
4是采用“选择性粘贴-〉图片”的方式导入。此时导入为图片,无法编辑。
如何将WORD文档文件导入到CAD中?
文档做成图片,在CAD里进行图像参照;
拷贝,在CAD里粘贴
怎么把cad图导入word中
word中导入cad图的方法(cad 2007+word 2003):
1、先打开需要导出的CAD图形
2、然后将背景色设置为白色,这样便于在word文件中设置白底黑线的图形文件.
3、然后点击确定,整体背景色显示为白色
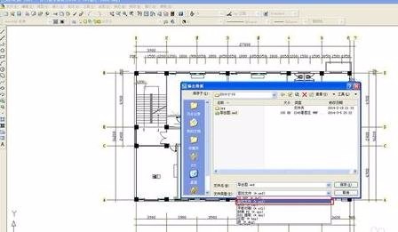
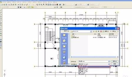
4、点击-----文件------输出-------
弹出对话框选择文件类型------图元文件(*.wmf)--------保存
5、鼠标变化为捕捉方块,点击方块-----把要输出区域框选----回车----完成
6、打开 word文件,点击----插入-----图片-----来自文件----
7、然后在弹出的对话框中选择要导入的图形文件---点击确定
8、这时看到导入的图片图形部分小而空白处较多
9、点击word文件中的图形编辑器-----裁剪-----把图形放大(或缩小)到需要的尺寸。
10、可以用这种办法放置多张图形。
转载请注明出处51数据库 » word导入cad 如何把CAD图导入word中
沖田総悟OkitaSatoru



























