Word表格换页不能显示完整的表格:
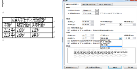
出现上述问题的首要原因可能是没有开启“允许跨页断行”。这时,只需选中表格,单击右键 → 表格属性 → 行 → 勾选允许跨页断行 → 确定即可。
经常,设置好了“允许跨页断行”,Word 表格文字依然无法自动换页,则有可能是由于有人给单元格设置了固定行高所导致的。
解决方法的操作同上,只要把表格属性设置中的行尺寸的“指定高度”前面框框里的勾去掉即可。
在Word中,遇到表格跨页的情况时,步骤如下:
鼠标点击表格任意位置,将光标定位到表格中,然后单击鼠标右键,在弹出的右键菜单中选择“表格属性”。
在弹出的“表格属性”对话框“表格”标签页下,将“文字环绕”设置为“无”,然后 单击“确定”即可。
回到Word文档后,可以看到现在表格已经分两页显示了,问题解决。
word表格太小,内容显示不全怎么解决?
文字上面好像被削了一样
缩小字体,段落——行距——固定值 调整一下就ok,这个就是段落的问题,调整一下行距就好了。
插入表格——在“自动调整”操作中——点上根据内容调整表格就可以了!
附图:
------------------------------------------------------
如下图 都有边框的,左边可以明显看到,但是右边的边框不见了,最右边还缺了2个字,下面的表格也是,表格也不全,右边少了2行。
这是由于表格过大造成的,可以按住边框,往里收缩,缩小后就可以看全了。或者把纸张设置大一些也行。或者可以尝试选中字体后,选择“清除格式”
------------------------------------------------------
1、表格总高度太高,只能部分显示。调节表格高度或垂直方向页边距应该就行了。
2、首先确保该单元格内部的左右边距是对称的,在表格属性》单元格》选项里看;然后光标定位到单元格内,右键》单元格对齐方式,选一个你需要的。
如果奇偶页分别用一种页眉,这个直接可以设置“奇偶页不同”;如果每页都不同,那么需要在每页的底端和顶端分别插入分节符,令每页分属不同小节,然后各节的页眉脚均可单独设置了
------------------------------------------------------
如图
PS 03版office
选中表格单击右键选择表格属性
------------------------------------------------------
填写表格形式的word文档,从另外一个WORD里的表格资料复制到一个WORD文档资料里时,填满当前页表格之后没有自动生成第二页,而是直接在第一页的最下面,文字也没有显示,只想一页显示不出可以分两页。
表格——自动调整,试一下先把表格里的所有字全都缩小,缩成一页后,再试,比如清除格式、重新设置;还有表格属性里的选项,比如自动调整适应文字多试试。
如图,表格本来是连着的,最后一个表格字数打多了以后,就自动和前边分开跑到下一页去了,下一页打满了以后,字直接看不到了。
一个表格文字太多也需要分页显示,新建一页,建一个与最后一页相同格式的表格就可以了
右键点击表格左上角的十字箭头,表格属性中找到“允许跨页断行”这个选项,勾选他。
在处理word表格时,会发现表格中某些文字无法显示,特别是在表格中的最后一行,你会发现该行后面的文字由于跑到的表格区域以外而无法显示,如图所示。
可能是给表格指定了行高,并且设置为固定值?
选中表格,设置表格的属性,去除表格属性中的“固定高度”格式和段落属性中的“孤行控制”格式
word表格底部文字显示不全
表格中的文字无法显示完全,就是到了表格的底部,有一大段的文字都没法显示。
具体描述如下:
1.无论如何调整表格边框都无用。
2.已在表格“属性”中“行”选项卡里勾除了“指定高度”。
3.每一个能设置“跨页断行”的地方都已设置“允许跨页断行”。
4.“段落”中无论如何设置“缩进量”和“行距”都无效。
问题如图所示:
这种情况一般都是从网上下载下来的,表格里有一些设置,导致超出了页面范围,显示不全,里面的设置好像很难更改。
如果只是要里面的内容,只要将内容复制出来,另外自己做个表格,放进去。
方法:将鼠标移到单元格左边,当出现黑色向右上倾斜的箭头时,单击选中整个单元格,然后复制下来,即可。
如果怀疑下面还有,可以尝试将已经复制的行,删除,看看下面有没有了。
原因在于,当文字的方向为竖直时,是不允许跨页断行的,就像古时候写字时竖得写,如果有些字在下一页,那就不成一段了,是不是啊,所以表格属性中的“允许跨页断行”也变成了灰色不可用状态了,就算你新建个空白表也是一样。
解决办法是:将左列文字改成横向,将表格属性中“允许跨页断行”勾上,已经改好,不知能否解决你的疑惑。
word中插入的表格编辑文字右侧文字显示不全怎么调整呢?
如图所显示的我是粘贴来的文字,文字也是我之前打的,粘贴到另一个word文档成这样了。调表格属性兜没有用是怎么回事呢?
调整表格内段落的右边距,将其格内段落右边距设置为0即可显示全。
应该是框框太小了吧,或者你把文字选中,然后清除格式,再根据框框大小调整你的字体
具体你连接http://office.jb51.net/word/189.html
word文档中的表格为什么内容显示不全
工具:office word
步骤:
1、打开office word,右击表格-自动调整-根据内容调整表格,使表格显示完整。
2、通过页面布局,调整纸张大小,让页面变大,使表格显示起来。
3、表格中的字显示不完全,这时右击段落-行距-不要选择固定值。
4、右击-表格属性-勾选允许跨行页断行。确定后即可完成。
word表格显示不全
1、首先,是一个word表格,里面的文字在表格内显示不全。
2、选中需要调整的表格内容,然后选择工具栏中的“段落”工具。
3、接下来在弹出的“段落”对话框中找到“行距”和“设置值”选项。
4、在“行距”选项中选择“固定值”,然后在“设置值”中设置好行距的值,点击确定即可。
5、再次回到word的表格看,此时文字没有改变大小,表格的行高也没有变化,但是文字已经完整的显示在表格内了。
6、当然,对于excel电子表格遇到同样的情况时也可以同法解决问题。
word表格内容太大显示不全就会自动跑到下一页,本页留大片空白,如何设置可以让表格根据内容自动调整?
在Word2016中直接插入表格是根据窗口进行自动调整的,看上去内容空空的很难看,其实可以设置成表格根据内容进行调整大小。
1、打开一个带有表格的Word文档,打开之后点表格左上角的十字号按钮。
2、之后在菜单栏的“布局”选项卡中点击“自动调整”按钮,在弹出的下拉菜单中点击“根据内容自动调整表格”。
3、完成之后返回内容页面可以看到表格已经自动调整完成。
如何配合按键拖动Word表格线 巧妙调整表格列宽。
在编辑Word表格时,通常都是拖动表格线来调整列宽。其实,如果在拖动表格线时,配合使用不同的按键,可以达到不同的目的。
1、按住Ctrl键的同时拖动表格线,表格线左边的列宽改变,增加或减少的列宽由其右方的列共同分享或分担,整个表格的宽度不变。
2、按住Shift键的同时拖动表格线,只改变该表格线左方的列宽,其右方的列宽不变,整个表格的宽度将有变动。
3、按住Alt键的同时拖动表格线,标尺上会显示出各列的宽度,其拖动结果与普通拖动方法相同。
word里做的表格里内容太多显示不全
不知道你表格属性是怎么调整的,具体应该行高设为最小值,而不是固定值,或者是不设,而且行的设置最好为允许跨页断行,这样在页面底端时,内容多的时候能自动换到下一页。还有表格的主要属性中文字环绕应设为无。
我重新开一个word,在把表格复制进去就好了
word表格中文字显示不全怎么解决
一、首先,打开Word程序,制作一张表格,此时表格内的中文字显示不全。
二、然后,在Word程序中选中表格内的文字。
三、然后,在Word程序主界面上方点击“开始”点击打开。
四、然后,在“开始”的菜单下点击“更改样式”,点击打开。
五、然后,在“更该样式”下拉菜单中选择“段落间距”中的“自定义段落间距”,点击打开。
六、然后,在弹出窗口中找到“行距”位置。
七、然后,将“行距”设置“1.5倍行距”。确认保存。
八、最后,回到Word文档中,表格内中文字正常显示。问题解决。
为什么word表格在同一页显示不全?
Word表格换页不能显示完整的表格:
出现上述问题的首要原因可能是没有开启“允许跨页断行”。这时,只需选中表格,单击右键 → 表格属性 → 行 → 勾选允许跨页断行 → 确定即可。
经常,设置好了“允许跨页断行”,Word 表格文字依然无法自动换页,则有可能是由于有人给单元格设置了固定行高所导致的。
解决方法的操作同上,只要把表格属性设置中的行尺寸的“指定高度”前面框框里的勾去掉即可。
在Word中,遇到表格跨页的情况时,步骤如下:
鼠标点击表格任意位置,将光标定位到表格中,然后单击鼠标右键,在弹出的右键菜单中选择“表格属性”。
在弹出的“表格属性”对话框“表格”标签页下,将“文字环绕”设置为“无”,然后 单击“确定”即可。
回到Word文档后,可以看到现在表格已经分两页显示了,问题解决。
转载请注明出处51数据库 » 表格太大word显示不全 为什么word表格在一页显示不全
你是我心上人














